
This toolkit can help you explore options for converting your garage into a separate dwelling. This kind of additional unit can be for a family member or rented out. The toolkits have sample one and two-bedroom units, an accessible unit and a Supply List with estimated costs.

| Exterior rendering |
|
The exterior rendering is for conceptual purposes only and do not replace architectural and other work involved to design and plan an ARU that suits your property and meets requirements. |
| Interior renderings |
|
The interior renderings are for conceptual purposes only and do not replace architectural and other work involved to design and plan an ARU that suits your property and meets requirements. |
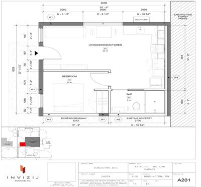
| Example Floor plans |
|
The floor plans are for conceptual purposes only and do not replace architectural and other work involved to design and plan an ARU that suits your property and meets requirements. |
| Estimated Costing |
|
Estimated Costing List for Attached one car garage (PDF) |

| Exterior rendering |
|
The exterior rendering is for conceptual purposes only and do not replace architectural and other work involved to design and plan an ARU that suits your property and meets requirements. |
| Interior renderings |
|
The interior renderings plans are for conceptual purposes only and do not replace architectural and other work involved to design and plan an ARU that suits your property and meets requirements. |
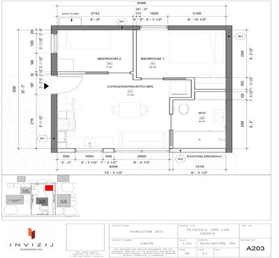
| Example Floor plans |
|
The floor plans are for conceptual purposes only and do not replace architectural and other work involved to design and plan an ARU that suits your property and meets requirements. |
| Estimated Costing |
|
Estimated Costing List for Attached two car garage (PDF) The estimates provided are based on available information at the time of estimation and are subject to change and are contingent on factors, including and not limited to, cost of labour, cost of materials and equipment, pricing from third parties and other conditions or requirements in which the City of Burlington has no control. |

| Exterior rendering |
|
The exterior rendering is for conceptual purposes only and do not replace architectural and other work involved to design and plan an ARU that suits your property and meets requirements. |
| Interior renderings |
|
The interior renderings are for conceptual purposes only and do not replace architectural and other work involved to design and plan an ARU that suits your property and meets requirements. |
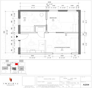
| Example Floor plans |
|
The interior floor plans are for conceptual purposes only and do not replace architectural and other work involved to design and plan an ARU that suits your property and meets requirements. |
| Estimated Costing |
|
Estimated Costing List for Detached one car garage (PDF) The estimates provided are based on available information at the time of estimation and are subject to change and are contingent on factors, including and not limited to, cost of labour, cost of materials and equipment, pricing from third parties and other conditions or requirements in which the City of Burlington has no control. |

| Exterior rendering |
|
The exterior rendering is for conceptual purposes only and do not replace architectural and other work involved to design and plan an ARU that suits your property and meets requirements. |
| Interior renderings |
|
The interior renderings are for conceptual purposes only and do not replace architectural and other work involved to design and plan an ARU that suits your property and meets requirements. |
| Example Floor plans |
|
The floor plans are for conceptual purposes only and do not replace architectural and other work involved to design and plan an ARU that suits your property and meets requirements. |
| Estimated Costing |
|
Estimated Costing Price List for Detached two car garage (PDF) The estimates provided are based on available information at the time of estimation and are subject to change and are contingent on factors, including and not limited to, cost of labour, cost of materials and equipment, pricing from third parties and other conditions or requirements in which the City of Burlington has no control. |

| Exterior rendering |
|
The exterior rendering is for conceptual purposes only and do not replace architectural and other work involved to design and plan an ARU that suits your property and meets requirements. |
| Interior renderings |
|
The interior renderings are for conceptual purposes only and do not replace architectural and other work involved to design and plan an ARU that suits your property and meets requirements. |
| Example Floor plans |
|
The floor plans are for conceptual purposes only and do not replace architectural and other work involved to design and plan an ARU that suits your property and meets requirements. |
| Estimated Costing |
|
Estimated Costing Price List for Detached two car garage - Accessible (PDF) The estimates provided are based on available information at the time of estimation and are subject to change and are contingent on factors, including and not limited to, cost of labour, cost of materials and equipment, pricing from third parties and other conditions or requirements in which the City of Burlington has no control. |